Kiadó vendéglátó egység Budapest IX. ker 10 000 Euro

Leírás


TELJESEN FELSZERELT IX. KERÜLETI 580 NM-ES VENDÉGLÁTÓEGYSÉG HOSSZÚTÁVRA BÉRBEADÓ!



Budapesten, a IX. kerületben, Ferencváros legpatinásabb és legfrekventáltabb részén, éttermeiről híres sétáló utcában, a Kálvin tér 100 méteres szomszédságában, nettó 580 nm-es, nívós, jelentős vendégforgalommal bíró, kiváló adottságú, teljesen felszerelt vendéglátóegység, exkluzív kialakítású éttermével, sörpincéjével együtt vagy külön hosszútávra bérbeadó! 

Bejáratott vendégkörrel rendelkező, patinás, nívós, komoly meleg konyhával rendelkező étterem, teljes berendezéssel és felszereléssel együtt.

 

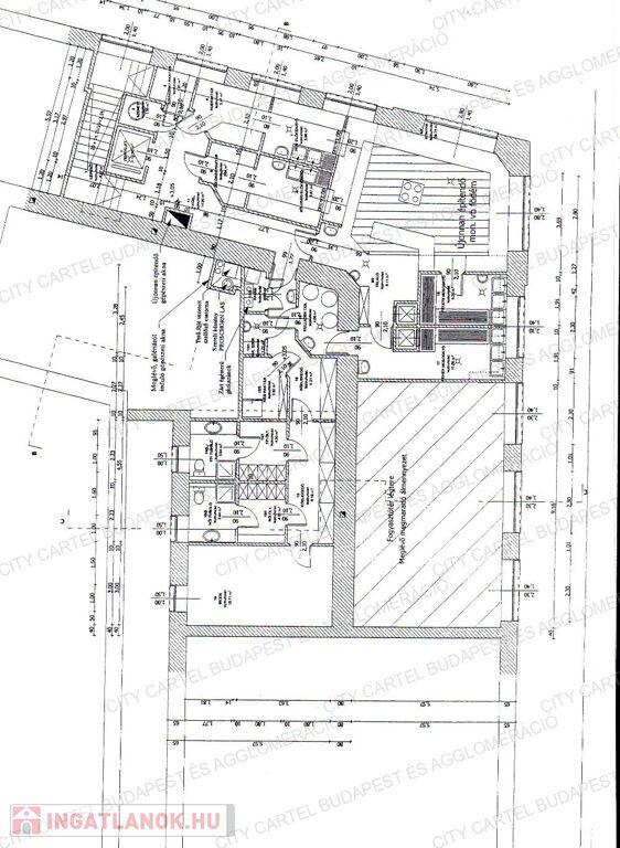
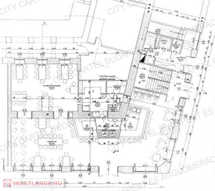
A bérbeadásra kínált ingatlan két utca sarkán található, 7 nagy ablakán és 3 bejáratán egész nap, de főként 11 és 13 óra között árad be a természetes fény. Az éttermet 2003-ban felújították a falai kivételével teljesen átépítették. Új, korszerű elektromos, gáz, víz, és csatorna vezetékeket, új nyílászárókat, látványkonyhát, bárpultot, egyedi fal és padló burkolatokat kapott. Minden szinten ipari légkondicionáló lett kialakítva.

 

Az ingatlan összes helyisége CCTV térfigyelő kamerarendszerrel van ellátva. A kiszolgálás gördülékenysége céljából mindhárom szinten étellift került beépítésre. 

 

Komplett konyhai felszereléssel, bútorzattal, légtechnikával, légkondicionálóval, eredetileg étteremnek kialakított vendéglátó helyiség. Az étterem céggel együtt bérbeadó (működési engedély, pénztárgép, POS terminálok stb… megvannak).

 

580 négyzetméter alapterület, felújított, berendezett és gépesített.

Konyha 150 nm. Kb. 300 adagos, teljesen berendezett konyha. Fekete-fehér mosogatók, hús és zöldség előkészítők, raktárak, személyzeti öltözök stb... Berendezés: 2 db gáztűzhely, zsámoly, gázos rostlap, állványos fritőz olajsütő, hűtött márványlapos hentes pult, salátás hűtő, melegen tártó készételek részére, találó pult  melegen tártóval, szalamander, mérlegek, kb 15 db különböző méretű hűtők,  stb…

 

Kb. 130 fő befogadására alkalmas, illetve lehetőség van egy 50-80 négyzetméteres terasz bérlésére is, mely további 50-60 főt tud fogadni.

Az étterem területe kb 580 négyzetméter összességében.

Földszint: 234 m2 (vendégtér része, ital raktár)

Emelet: 180 m2 (konyha rész, előkészítők, konyhai raktárak, öltöző szobák, stb.)

Pince: raktár 107 nm, + vendég WC-ek + gépház, + közlekedő.

 

Bérleti díj:6000.-EURt/hó + rezsi költség

Kaució: 3 havi bérleti díj

 

+ bérbeadó még: 

200 nm-es pincehelyiség. A helység ablakokkal rendelkezik. Belmagasság: 3,5-4,5 méter.

 

Étteremként/Sörözőként (látvány konyhával) és Tetováló szalonként működött.

Elszívó rendszer ki van építve! Bútor van. Konyhai gépek és berendezés használata a bérleti díjban.

Fűtés gázkazánnal, nyáron - légkondicionálás, befúvó - elszívó berendezés 4000 köb m/óra, hideg-meleg víz, WC-ek.

2 egymásba nyíló terem 150 nm, 2 mosogató 20 nm, folyosó, stb... Faszénes grill be van építve.

80-90 férőhely.





Bérleti díj: 10.000 Eur/hó



Amennyiben a leírtak és a látott képek felkeltették érdeklődését, hívjon bizalommal az ingatlannal kapcsolatban!

 

Vendéglátó egység részletei

Ár: 10 000 Euro/hónap
Méret: 580 négyzetméter
Azonosító: 11328296
Irodai azonosító: 10824213
Ingatlan állapota: Kitűnő